Sie haben Fragen? Rufen Sie uns an!

02241 – 999 300

Charmanter Bungalow mit idyllischem Innenhof in Toplage

Objekt-Nr. 66275-8436 – Haus zum Kauf in Troisdorf


Ansprechpartner

GUTENBERG IMMOBILIEN GmbH

Telefon: +49 2241 999 300

info@gutenberg-immobilien.de

Kontakt aufnehmen

Eckdaten

Kaufpreis 450.000 €
Adresse 53844 Troisdorf
Wohnfläche ca. 100 m²
Nutzfläche ca. 100 m²
Grundstücksfläche ca. 300,33 m²

Beschreibung

Dieser sehr gepflegte, fast barrierefreie Bungalow überzeugt durch seine durchdachte Raumaufteilung, die helle Wohnatmosphäre und den besonderen Charme eines Innenhofs. Die 100 m² Wohnfläche verteilen sich auf insgesamt vier Zimmer: ein Wohnzimmer und drei Schlafzimmer, wobei zwei davon variabel als Esszimmer, Büro oder Kinderzimmer genutzt werden können.

Der großzügige Eingangsbereich ist mit hochwertigen Fliesen ausgestattet, vermittelt ein einladendes Wohngefühl und verbindet alle Räume miteinander. Links findet man den Wohnbereich und die separate Küche. Auf der rechten Seite gelangt man zu allen anderen Räumen wie den Schlafzimmern oder ggf. dem Büro. Im Wohn- und Esszimmer sorgen edle Echtholzböden für ein warmes Ambiente. Ebenso wie die Echtholztüren im gesamten Bungalow. Sowohl das Wohn- und Schlafzimmer als auch die Garage bieten Zugang zum ummauerten Innenhof. Ein Highlight, das viel Privatsphäre und erholsame Stunden im Freien garantiert.

Die geräumige Küche bietet Platz für entspannte Kochabende. Da sie genügend Platz für einen Esstisch bietet, kann das aktuelle Esszimmer problemlos anderweitig genutzt werden. Gegenüber des aktuellen Esszimmers befindet sich das Gäste-WC und gegenüber vom Schlafzimmer das Badezimmer mit Badewanne. Beide Bäder verfügen über ein Tageslichtfenster.

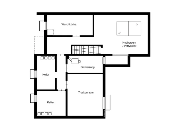
Der Bungalow ist vollständig unterkellert und bietet dadurch reichlich Abstell- und Nutzfläche. Der Keller ist komplett gefliest und bietet einen Vorratsraum, eine Waschküche inkl. Dusche und Waschbecken und außerdem einen möblierten Raum, in dem schon die ein oder andere Party gefeiert wurde. Fenster mit Wärmeschutzverglasung aus dem Jahr 2011 sorgen für eine ideale Wärmeisolierung im gesamten Haus. Dazu kommen gedämmte Rollladenkästen und eine elektrische Markise.

Dank der lichtdurchfluteten Räume, beispielsweise durch bodentiefe Fenster im Schlaf- und Wohnbereich, und der gepflegten Ausstattung eignet sich dieses Haus hervorragend als komfortables Eigenheim mit hoher Wohnqualität.

Ausstattungsbeschreibung

- fast barrierefrei

- bodentiefe Fenster

- ummauerter Innenhof

- Gäste-WC

- Tageslichtfenster in Badezimmer und Gäste-WC

- eine Garage

- teilweise Echtholzböden

- Keller mit Partyraum

- erneuerte Haustür

- Glasfaserleitungen bereits verlegt

Lagebeschreibung

Die Immobilie liegt im beliebten Troisdorfer Ortsteil Bergheim, einer ruhigen und familienfreundlichen Wohnlage mit hohem Freizeitwert. Das zeichnet sich auch durch eine ruhige Umgebung mit überwiegend Ein- und Mehrfamilienhäusern aus.
Geschäfte für den täglichen Bedarf, Schulen, Kindergärten sowie medizinische Einrichtungen befinden sich in direkter Umgebung und sind schnell erreichbar.
Der nahe Rhein sowie zahlreiche Grünflächen laden zu Spaziergängen, Radtouren und vielfältigen Freizeitaktivitäten ein. Trotz der naturnahen Lage ist die Anbindung hervorragend: Über die Bundesstraßen und die Autobahnen A59 und A565 erreicht man sowohl Köln als auch Bonn in kurzer Zeit.

Auch der öffentliche Nahverkehr mit Buslinien und dem Bahnhof Troisdorf sorgt für eine schnelle Verbindung in die Region. Damit vereint die Lage in der Mondorfer Straße die Vorzüge eines ruhigen Wohnumfelds mit der ausgezeichneten Erreichbarkeit der umliegenden Großstädte.

Käuferprovision

3,57 % inkl. MwSt.

Ausstattung

Zimmer 4
Anzahl Badezimmer 1
Anzahl Etagen 1
Anzahl Schlafzimmer 3
Anzahl separate WCs 1
Anzahl Stellplätze 1
Anzahl Terrassen 1
Kategorie Gehoben
Baujahr 1973
Befeuerungsart Gas
Gäste-WC
Heizungsart Zentralheizung
Garagenanzahl 1
Unterkellert
verfügbar ab nach Vereinbarung
Verkaufstatus offen
Zustand gepflegt

Energiebedarfsausweis

Endenergiebedarf 196,01 kWh/(m²*a)
Befeuerungsart Gas
Heizungsart Zentralheizung
Wesentlicher Energieträger GAS
Baujahr (Energieausweis) 1973
Energieeffizienzklasse F
Gültig bis 27.09.2035
Energieausweis 2014

0200400+


Objekt-Nr. 66275-8436 – Haus zum Kauf in Troisdorf

Zurück zu den Immobilienangeboten

Erfolg! Vielen Dank für Ihre Bewertung.

Fehler! Bitte füllen Sie alle Felder aus.