Sie haben Fragen? Rufen Sie uns an!

02241 – 999 300

Eigentumswohnung in ruhiger Lage mit Balkon und Tiefgaragenstellplatz

Objekt-Nr. 66275-8443 – Wohnung zum Kauf in Sankt Augustin


Ansprechpartner

GUTENBERG IMMOBILIEN GmbH

Telefon: +49 2241 999 300

info@gutenberg-immobilien.de

Kontakt aufnehmen

Eckdaten

Kaufpreis 210.000 €
Hausgeld 314 €
Adresse 53757 Sankt Augustin
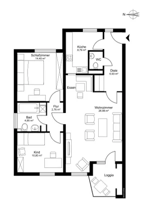
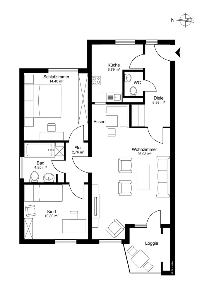
Wohnfläche ca. 80 m²
Zimmer 3

Beschreibung

In ruhiger und begehrter Lage von Sankt Augustin-Menden erwartet Sie diese charmante 3-Zimmer-Eigentumswohnung mit viel Gestaltungsspielraum. Die Wohnung befindet sich in einem gepflegten Mehrfamilienhaus und bietet auf durchdachter Fläche ein ideales Zuhause für Paare, kleine Familien oder Kapitalanleger.

Die Raumaufteilung umfasst ein helles Wohnzimmer mit Zugang zum Balkon, der einen herrlichen Weitblick ins Grüne ermöglicht, eine separate Küche, zwei Schlafzimmer, ein Tageslichtbad mit Dusche sowie ein zusätzliches Gäste-WC. Alle Räume sind mit Rollläden ausgestattet und bieten eine angenehme Wohnatmosphäre.

Besonders hervorzuheben sind die gemeinschaftlich nutzbaren Wellnessbereiche im Keller: Ein Schwimmbad und eine Sauna stehen den Bewohnern zur Verfügung und sorgen für Entspannung direkt im Haus. Zur Wohnung gehören außerdem ein eigener Kellerraum sowie ein Tiefgaragenstellplatz, der komfortables Parken garantiert.

Die Wohnung befindet sich in einem renovierungsbedürftigen Zustand – ein klarer Vorteil für alle, die ihre eigenen Wohnideen verwirklichen möchten. Ob modernes Design, klassische Eleganz oder funktionale Raumlösungen: Hier haben Sie die Freiheit, Ihr neues Zuhause ganz nach Ihren Vorstellungen zu gestalten.

Ausstattungsbeschreibung

- Schwimmbad

- Aufzug

- Saunabereich im Keller

- Tiefgaragenstellplatz

- Balkon mit Weitblick

- Teilweise Parkettboden

Lagebeschreibung

Die Eigentumswohnung befindet sich in einem ruhigen und gepflegten Wohngebiet im Stadtteil Menden der Stadt Sankt Augustin. Die Umgebung zeichnet sich durch eine angenehme Nachbarschaft, wenig Durchgangsverkehr und eine gute Durchmischung aus Ein- und Mehrfamilienhäusern aus. Hier wohnt man ruhig und dennoch zentral.

Die Infrastruktur ist hervorragend: Einkaufsmöglichkeiten für den täglichen Bedarf, Ärzte, Apotheken, Schulen und Kindergärten sind bequem erreichbar. Der beliebte Huma Einkaufspark mit zahlreichen Geschäften, Cafés und Restaurants liegt nur wenige Minuten entfernt und bietet ein vielfältiges Angebot.

Auch die Verkehrsanbindung überzeugt: Die Nähe zur B56 sowie zu den Autobahnen A560 und A59 ermöglicht eine schnelle Erreichbarkeit der umliegenden Städte wie Bonn, Siegburg und Köln. Der öffentliche Nahverkehr ist durch Buslinien und die Stadtbahnlinie 66 bestens ausgebaut – ideal für Pendler und alle, die flexibel mobil sein möchten.

Für Freizeit und Erholung sorgen zahlreiche Grünflächen, Sporteinrichtungen und Naherholungsgebiete in der Umgebung. Der nahegelegene Flugplatz Bonn-Hangelar sowie das Pleiser Waldgebiet laden zu Spaziergängen, sportlichen Aktivitäten oder entspannten Ausflügen ein.

Käuferprovision

3,57 % inkl. MwSt.

Ausstattung

Anzahl Badezimmer 1
Anzahl Balkone 1
Anzahl Schlafzimmer 2
Anzahl separate WCs 1
Anzahl Stellplätze 1
Kategorie Standard
Baujahr 1971
Lage im Objekt (Etage) 4
Fahrstuhl Personen
Gäste-WC
Sauna
Garagenanzahl 1
Stellplatzmiete (Garage) 10.000 €
Unterkellert
verfügbar ab nach Vereinbarung
Verkaufstatus offen

Energieverbrauchsausweis

Endenergieverbrauch 87,31 kWh/(m²*a)
Wesentlicher Energieträger GAS
Baujahr (Energieausweis) 1971
Energieeffizienzklasse C
Gültig bis 26.03.2029
Energieausweis 2014

0200400+


Objekt-Nr. 66275-8443 – Wohnung zum Kauf in Sankt Augustin

Zurück zu den Immobilienangeboten

Erfolg! Vielen Dank für Ihre Bewertung.

Fehler! Bitte füllen Sie alle Felder aus.