Sie haben Fragen? Rufen Sie uns an!

02241 – 999 300

Gepflegte Praxis- und Bürofläche in zentraler Lage ***PROVISIONSFREI***

Objekt-Nr. 66272-VDNS483 – Büro/Praxis zur Miete in Königswinter


Ansprechpartner

GUTENBERG IMMOBILIEN GmbH

Telefon: +49 2241 999 300

info@gutenberg-immobilien.de

Kontakt aufnehmen

Eckdaten

Miete zzgl. NK 5.313 €
Nebenkosten 1.932 €
Miete inkl. NK 7.245 €
Heizkosten in Nebenkosten enthalten
Adresse 53639 Königswinter

Beschreibung

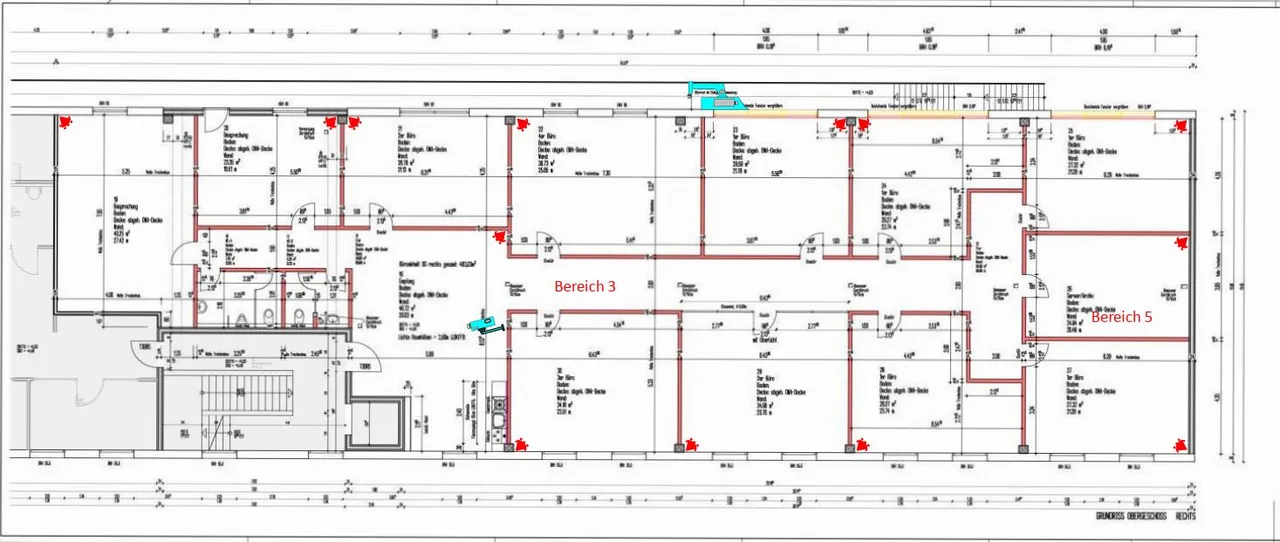
Die Gesamtfläche der noch verfügbaren Büro- und Praxisflächen beläuft sich auf 483 m².
Der beigefügte Grundriss stellt die aktuelle Aufteilung dar. Bei konkretem Mietinteresse kann die Raumaufteilung ggf. angepasst werden.
Über den Eingangsbereich erreichen Sie die offene Küche sowie den Flur, von dem alle 14 Räumlichkeiten abgehen. Hierin enthalten sind zwei separate WC- Anlagen und ein Serverraum. Die restlichen Räume können als Büro- oder auch als Praxisräume genutzt werden. Sie sind klimatisiert, modern und repräsentativ.

Sonstiges

Die monatliche Betriebskostenvorauszahlung beträgt inkl. Heizkosten 4,- pro m².
Kostenübersicht Büros: Nettokaltmiete: 11,- / m² + Betriebskostenvorauszahlung inkl. Heizkosten: 4,- / m² = Zwischensumme: 15,- / m² + Mehrwertsteuer: 2,85 / m² = Bruttowarmmiete inkl. MwSt. 17,85 / m².
Die Höhe der Kaution ist von Fall zu Fall mit dem Eigentümer abzustimmen. Bezüglich der Form der Kaution (z. B. Bankbürgschaft) bitten wir um Rücksprache.

Ausstattungsbeschreibung

Ausstattung:
+ Ausreichend PKW-Stellplätze direkt vor dem Gebäude
+ Aufzug
+ Gepflegte Räumlichkeiten
+ Provisionsfrei für den Mieter
+ Klimaanlage
+ Alarmanlage
+ repräsentative Einbauküche
+ Wärmeversorgung über zentrale Luft-Wasser-Wärmepumpenanlage, Abdeckung der Leistungsspitzen durch zugeschaltete Gas-Brennwertheizung
+ Beheizung über thermostatgesteuerte Fußbodenheizung
+ Lüftungsanlagen für alle innenliegenden Räume nach DIN, Arbeitsstättenverordnung und den neusten Regeln der Technik
+ Bodenbelag: Teppichboden
+ Innenwände weiß
+ Rasterakustikabhangdecke
+ Netzwerkverkabelung

Lagebeschreibung

Gewerbegebiet Im Mühlenbruch in Königswinter - Oberdollendorf.
Unmittelbar an der Ortsgrenze zu Bonn-Oberkassel, direkte Autobahnanbindung zur B42. Öffentliche Verkehrsmittel sind fußläufig erreichbar.
Neben einer Tankstelle, einem Baumarkt und diverser Einzelhandelsflächen gibt es in diesem Gewerbegebiet moderne Büro- und Ärztehäuser.

Ausstattung

Nutzfläche ca. 483 m²
Gesamtfläche ca. 483 m²
Bürofläche ca. 483 m²
Zimmer 12
Kategorie Gehoben
Baujahr 2014
Befeuerungsart Gas, Erdwärme mit Wärmepumpe
Boden Fliesen, Teppich
Netzwerkverkabelung
Fahrstuhl Personen
Gäste-WC
Gewerbliche Nutzung möglich
Heizungsart Fußbodenheizung
Klimatisiert
verfügbar ab sofort
Verkaufstatus offen

Objekt-Nr. 66272-VDNS483 – Büro/Praxis zur Miete in Königswinter

Zurück zu den Immobilienangeboten

Erfolg! Vielen Dank für Ihre Bewertung.

Fehler! Bitte füllen Sie alle Felder aus.