Sie haben Fragen? Rufen Sie uns an!

02241 – 999 300

Repräsentative Gewerbeeinheit – zentrale Lage direkt am Bahnhof Troisdorf

Objekt-Nr. 66275-8396 – Büro/Praxis zur Miete in Troisdorf


Ansprechpartner

GUTENBERG IMMOBILIEN GmbH

Telefon: +49 2241 999 300

info@gutenberg-immobilien.de

Kontakt aufnehmen

Eckdaten

Miete zzgl. NK Preis auf Anfrage
Adresse 53840 Troisdorf
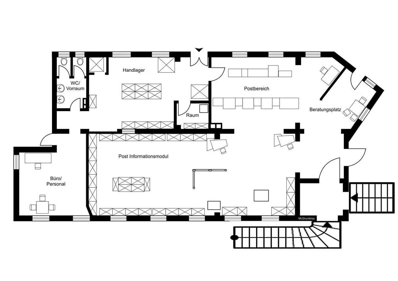
Gesamtfläche ca. 351 m²
Bürofläche ca. 351 m²
Zimmer 9

Beschreibung

In zentraler Lage von Troisdorf, direkt am Bahnhof, befindet sich diese repräsentative und denkmalgeschützte Gewerbeeinheit aus dem Jahr 1928. Das stilvolle Gebäude vereint historischen Charme mit vielseitigen Nutzungsmöglichkeiten und bietet auf ca. 351 m² Fläche insgesamt neun großzügige Zimmer, die bei Bedarf flexibel an individuelle Anforderungen angepasst werden können. Im Rahmen eines geplanten Umbaus wird die Fassade zudem frisch gestrichen, was das äußere Erscheinungsbild zusätzlich aufwertet. Das Objekt verfügt über insgesamt fünf separate Zugänge: einen barrierefreien Haupteingang mit Rampe von der Straßenseite, je einen seitlichen Eingang auf der rechten und linken Gebäudeseite sowie zwei weitere Zugänge vom Innenhof. Bis zu sieben PKW-Stellplätze stehen auf der Rückseite des Gebäudes zur Anmietung bereit – ein echter Vorteil in dieser zentralen Lage. Die Beheizung erfolgt über eine Gaszentralheizung mit Heizkörpern, die Warmwasserversorgung kann wahlweise über Boiler oder Durchlauferhitzer erfolgen. Auch eine Klimatisierung der Räume ist bei Bedarf realisierbar. Diese außergewöhnliche Gewerbeeinheit überzeugt durch ihre Kombination aus klassischer Architektur und moderner Funktionalität und stellt eine ideale Basis für unterschiedlichste gewerbliche Nutzungskonzepte in bester Lage von Troisdorf dar.

Ausstattungsbeschreibung

- Zentrale Lage direkt am Hauptbahnhof Troisdorf
- Denkmalgeschütztes Gebäude mit historischem Charme (Baujahr 1928)
- Ca. 351 m² Gewerbefläche mit 9 großzügigen Zimmern
- Flexible Raumgestaltung nach Mieterwunsch möglich
- Geplante Renovierung inklusive neuer Fassadengestaltung
- Barrierefreier Haupteingang mit Rampe
- Insgesamt 5 separate Zugänge (inkl. zwei vom Innenhof)
- Bis zu 7 PKW-Stellplätze auf der Rückseite anmietbar
- Gaszentralheizung mit Heizkörpern
- Warmwasser über Speicher oder Durchlauferhitzer wählbar

Lagebeschreibung

Das Objekt befindet sich in zentraler Lage von Troisdorf und bietet eine hervorragende Verkehrsanbindung für Kunden, Mitarbeiter und Geschäftspartner. Der Bahnhof ist fußläufig erreichbar und ermöglicht eine schnelle ÖPNV-Verbindung nach Köln, Bonn und Siegburg.

Darüber hinaus ist der Standort verkehrstechnisch sehr gut erschlossen: Hauptverkehrsstraßen wie die B8 und B56 sind in wenigen Minuten erreichbar und bieten direkten Anschluss an die Autobahnen A59 und A3. So ist auch der überregionale Straßenverkehr problemlos zugänglich.

Insgesamt überzeugt der Standort durch seine zentrale Lage, sehr gute Erreichbarkeit und Sichtbarkeit – ideale Voraussetzungen für eine gewerbliche Nutzung.

Mieterprovision

Die Mieterprovision beträgt das 2-fache (zzgl. MwSt.) der vereinbarten Monatskaltmiete

Ausstattung

Kategorie Standard
Baujahr 1928
Boden Fliesen
Gäste-WC
Gewerbliche Nutzung möglich
Heizungsart Zentralheizung
Unterkellert
verfügbar ab 30.04.2026
Verkaufstatus offen
Zustand gepflegt

Energieverbrauchsausweis

Endenergieverbrauch 226 kWh/(m²*a)
Endenergieverbrauch-Strom 8,30 kWh/(m²*a)
Endenergieverbrauch-Wärme 191,90 kWh/(m²*a)
Heizungsart Zentralheizung
Wesentlicher Energieträger ERDGAS_LEICHT
Baujahr (Energieausweis) 1928
Gültig bis 17.01.2034
Energieausweis 2014

0200400+


Objekt-Nr. 66275-8396 – Büro/Praxis zur Miete in Troisdorf

Zurück zu den Immobilienangeboten

Erfolg! Vielen Dank für Ihre Bewertung.

Fehler! Bitte füllen Sie alle Felder aus.