Sie haben Fragen? Rufen Sie uns an!

02241 – 999 300

Sehr hochwertig ausgestattete 4-Zimmer-Stadtwohnung mit Aufzug, Einbauküche, 2 Balkonen und Garage

Objekt-Nr. 20044-3992 – Wohnung zur Miete in Hennef


Ansprechpartner

GUTENBERG IMMOBILIEN GmbH

Telefon: +49 2241 999 300

info@gutenberg-immobilien.de

Kontakt aufnehmen

Eckdaten

Miete zzgl. NK 1.440 €
Nebenkosten 500 €
Miete inkl. NK 1.940 €
Kaution 4.530 €
Heizkosten in Nebenkosten enthalten

Beschreibung

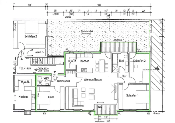
Diese großzügige und sehr hochwertig ausgestattete 4-Zimmer-Wohnung im 1. Obergeschoss eines gepflegten Mehrparteienhauses mit Aufzug vereint Komfort, Helligkeit und eine durchdachte Raumaufteilung auf rund 131 m² Wohnfläche.
Ideal für kleine Familien, Paare mit Platzbedarf oder anspruchsvolle Singles – hier lassen sich Wohnträume verwirklichen.
Die Wohnung ist folgendermaßen aufgeteilt:
Großzügiger Eingangsbereich mit praktischem Einbauschrank, Gäste-WC mit Dusche und ein Gäste-/Arbeitszimmer.
Der lichtdurchflutete Wohn- und Essbereich mit integrierter Einbauküche bildet das Herzstück der Wohnung – perfekt für gesellige Abende oder entspannte Stunden im Familienkreis.
Ein Abstellraum an der Küche bietet praktischen Stauraum – ob für Vorräte, Haushaltsgeräte oder als Platz für die Waschmaschine.
Zusätzlich steht Ihnen auch eine gemeinschaftliche Waschküche im Haus zur Verfügung.
Ein separater Schlaftrakt mit 2 Räumen und einem schönen Bad mit ebenerdiger, großer Dusche, sowie 2 schöne Balkone vervollständigen diesen durchdachten Grundriss.
Dank der bodentiefen Fenster und der Balkone genießen Sie zu jeder Tageszeit eine helle und angenehme Wohnatmosphäre.
Ihr Fahrzeug parken Sie bequem und sicher in der zur Wohnung gehörenden Garage auf einem Doppelparker-Stellplatz.
Ein Kellerraum bietet weitere Abstellfläche.

Der Vermieter sucht Mieter, die an einer langfristigen Anmietung, d.h. von mindestens 2 Jahren, interessiert sind.

Die Gesamtmiete setzt sich wie folgt zusammen: Kaltmiete 1.440,00EUR + 70,00 EUR für 1 Stellplatz in der Garage auf einem Doppelparker-Stellplatz + 500,00 EUR Nebenkostenvorauszahlung = 2.010,00 EUR.
Strom und wenn gewünscht Kabelfernsehen zahlen die Mieter separat und direkt an den jeweiligen Versorger.

Lassen Sie sich bei einer Besichtigung von dem besonderen Charme dieser Wohnung überzeugen.
Kontaktieren Sie uns noch heute – wir freuen uns auf Ihre Anfrage!

Sonstiges

Energieausweis: Verbrauchsausweis gültig von: 09.08.2022
Endenergieverbrauch Wärme: 57,3 kWh/(m²a) inklusive Warmwasser
Energieeffizienzklasse: B
Baujahr: 2014

Ausstattungsbeschreibung

Die Wohnung ist sehr geschmackvoll und hochwertig ausgestattet, u.a. mit:
•einer hochwertigen, sehr gepflegten Einbauküche mit Siemensgeräten
•Aufzug im Haus – barrierefreier Zugang zur Wohnung
•elektrischen Rollläden an allen Fenstern für optimalen Sicht- und Sonnenschutz
•Klimaanlagen im Wohn-/ Esszimmer und im großen Schlafzimmer für angenehme Temperaturen auch im Sommer
•Videogegensprechanlage für zusätzliche Sicherheit
•Traumbad mit großer, ebenerdiger Dusche
•Gästebad mit ebenerdiger Dusche

Lagebeschreibung

Die Wohnung befindet sich in zentraler, begehrter Innenstadtlage von Hennef (Sieg), zwischen Sieg und der belebten Frankfurter Straße – einer etablierten Geschäfts- und Einkaufsstraße. Die Umgebung zeichnet sich aus durch eine attraktive Mischung aus Einzelhandel, Gastronomie, medizinischer Versorgung sowie verschiedensten Dienstleistungsangeboten.
Der Bahnhof Hennef (Sieg) ist fußläufig schnell erreichbar und bietet regelmäßige S-Bahn-Verbindungen (S12 und S19) in Richtung Köln, Siegburg/Bonn und Au (Sieg).
Zusätzlich verbinden mehrere Buslinien (u.?a. 516, 525, 527, 529) den Standort mit dem städtischen Umfeld sowie dem Umland.
Über die nahegelegene Autobahnanschlussstelle Hennef-West erreicht man die A560 in ein paar Minuten, mit direkter Verbindung zur A3 (Köln–Frankfurt).
Neben der urbanen Infrastruktur bietet der Standort auch eine hohe Aufenthaltsqualität durch seine Nähe zur Natur: Die Sieg ist in wenigen Gehminuten erreichbar und lädt zu erholsamen Spaziergängen am Flussufer ein. In der Nähe befindet sich zudem der beliebte Allner See – ein Naherholungsgebiet mit Spazierwegen und einer schönen Liegewiese.

Ausstattung

Adresse 53773 Hennef - Zentrum
Wohnfläche ca. 131 m²
Zimmer 4
Abstellraum
Anzahl Badezimmer 2
Anzahl Etagen 5
Anzahl Wohneinheiten 9
Baujahr 2014
Befeuerungsart Gas
Lage im Objekt (Etage) 1
Fahrstuhl Personen
Heizungsart Zentralheizung, Fußbodenheizung
Küche Einbauküche
Garagenanzahl 1
Stellplatzmiete (Garage) 70 €
Stellplatzart Garage
Unterkellert
verfügbar ab nach Vereinbarung
Wasch/Trockenraum
Zustand neuwertig

Energieverbrauchsausweis

Endenergieverbrauch 57,30 kWh/(m²*a)
Energieverbrauch inkl. Warmwasser
Befeuerungsart Gas
Heizungsart Zentralheizung, Fußbodenheizung
Wesentlicher Energieträger Gas
Baujahr (Energieausweis) 2014
Energieeffizienzklasse B
Gültig bis 08.08.2032
Energieausweis 2014
Energieausweis Ausstellungsdatum 2022-08-09

0200400+


Objekt-Nr. 20044-3992 – Wohnung zur Miete in Hennef

Zurück zu den Immobilienangeboten

Erfolg! Vielen Dank für Ihre Bewertung.

Fehler! Bitte füllen Sie alle Felder aus.